Popis produktu
NORMA S IDRO D.S.A. krbová kamna s výměníkem NORDICA
Optimální výkon do vody 14,9 kW a 4,6 do okolí, vysoká účinnost 78,6 %, velké prosklení, kompaktní rozměry a snadná a rychlá montáž. Takto velký výkon si musí hledat zájemce ale někde na statku nebo domku pro dvě rodiny, kde může nahradit starý kotel. Krbové prosklení a masivní litinové díly upřednostňují především vysokou životnost.
Základní filozofie, co nejvíce tepla do vody a málo do prostoru byla splněna.

Tento nový výrobek v mnohém předčí staré kotle. Krbové prosklení by bylo málo. Především jde o vysoké zužitkování energie obsažené ve dřevě kdy hodnota účinnosti dosahuje 78,6 %.To je docíleno především novým způsobem trojitého spalování. Při instalaci pouze jednoho vzduchu – primárního by byla účinnost něco nad 50%. Zde je ale ještě druhý – sekundární vzduch, který se musí silně předehřát aby se zvýšila účinnost přes 70%. Instalováním třetího vzduchu – terciárního těsně nad palivem se spálí poslední zbytky energie ze dřeva. Potom je účinnost na 78,6 % a hodnoty CO2 jsou tak nízké, že je povolená instalace i v Německu. Masivní litinové díly použité všude a ocelový výměník se systémem D.S.A. jsou silným argumentem pro koupi.
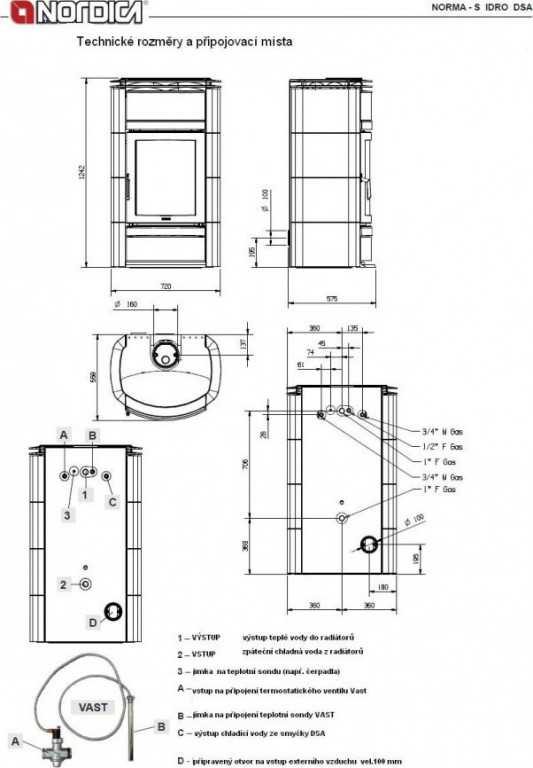
Co je vlastně systém D.S.A?
Za prvé tlak!
Ten je až 3 bary ale zkoušený ve výrobě je na 6 barů. Toto zcela vylučuje poškození v případě jakékoliv poruchy nebo přetopení.
Za druhé bezpečnost.
Při poruše oběhu vody nebo většího naložení paliva kdy systém ÚT není schopen všechno teplo absorbovat dojde k otevření bezpečnostního termostatického ventilu. Průtokem chladné vody z vodovodního řádu se vnitřní teplota sníží na bezpečnou hodnotu. Po ochlazení a případném snížení množství vzduchu se vrátí do původních hodnot.
Za třetí automatický provoz topení.
Ne, že by to za Vás přikládalo palivo. To musíte podle potřeby provádět vždy sami, ale když nastavíte regulačním šoupátkem množství vzduchu, tak je jemně regulováno hoření..
Dvojité spalování s regulovatelnými šoupátky je pro jednoduchost zepředu. Jak roztápěcí primární, tak sekundární ale i třetí terciární je silně předhříván. Čisté hoření s malým špiněním skla je samozřejmostí. Aby provoz nebyl moc prašný, je pod roštem velká zásuvka na popel.
Elegantní kachlové obložení přenáší i nízkoteplotní energii, která je tak příjemná pro lidský organismus. Tři barvy bordo, pergamena a titano jsou na výběr.
Technické parametry
Barevné možnosti korpusu
Možnost výběru z více barevných provedení korpusů.
Při vytváření objednávky uveďte prosím název požadovaného barevného provedení.



|
Tyto kamna jsou Zakázková Výroba
Skladovost u produktu je pouze orientační, všechna kamna jsou vždy zadávána na výrobu (objednávku), orientační dobu výroby Vám sdělíme e-mailem či telefonicky po objednání a uhrazení vaší objednávky. Kamna jsou zakázková výroba, nikoli e-shopový skladový prodej.Kupující bere na vědomí, že jako „Zakázková výroba“ jsou označeny takové výrobky, které jsou vyráběny na zakázku.
|